Onze
Werkwijze
— Van idee tot realisatie
Intake
gesprek 01
We starten met een persoonlijk gesprek waarin we jouw wensen, ideeën en uitdagingen helder in kaart brengen. We luisteren naar wat je nodig hebt, kijken naar de huidige situatie en stellen gerichte vragen om tot de kern te komen. Zo leggen we een sterke basis voor een keukenoplossing die écht aansluit bij jouw werkwijze en horecazaak.
Visueel
ontwerp 02
Op basis van de intake vertalen we jouw wensen naar een concreet visueel ontwerp. Denk aan indelingen, looproutes en de uitstraling van de keuken. We maken het plan tastbaar met duidelijke visuals, zodat je precies ziet hoe jouw toekomstige keuken eruit komt te zien — praktisch, efficiënt en afgestemd op jouw concept.
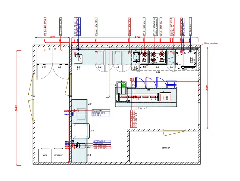
Technisch
design 03
Na het visuele ontwerp werken we alles technisch tot in detail uit. We vertalen het concept naar concrete tekeningen, installaties en specificaties, zodat alles klopt — van apparatuur en aansluitingen tot routing en veiligheid. Zo zorgen we ervoor dat het plan niet alleen mooi oogt, maar ook technisch perfect uitvoerbaar is in jouw werkwijze en praktijk.
Project management 04
Tijdens de realisatie nemen wij de regie volledig uit handen. We stemmen alle betrokken partijen zorgvuldig op elkaar af, bewaken de planning nauwgezet en houden voortdurend grip op kwaliteit en budget. Jij hebt één vast aanspreekpunt en blijft altijd op de hoogte van de voortgang, terwijl wij zorgen dat alles soepel en volgens plan verloopt.
Realisatie & Ontzorging 05
In de laatste fase brengen we alles samen en realiseren we de keuken precies zoals ontworpen. We begeleiden de volledige uitvoering tot in detail, afgestemd op jouw werkwijze, en zorgen dat alles correct wordt opgeleverd en werkt zoals bedoeld. Ook na de oplevering blijven we betrokken, zodat jij zonder zorgen kunt focussen op waar het echt om gaat — jouw horecazaak.
—Uw Wensen
Een keuken die écht
bij je past
Wij geloven dat een goede horecakeuken begint met aandachtig luisteren. In een persoonlijk gesprek brengen we jouw wensen, werkwijze en concept helder in kaart. Dit vormt de basis voor een doordacht ontwerp waarin routing, apparatuur en uitstraling naadloos op elkaar zijn afgestemd — zowel technisch als praktisch.
Gedurende het hele proces houden we je nauw betrokken en adviseren we over slimme indelingen, hoogwaardige materialen, technische mogelijkheden en budgetbewaking. Zo realiseren we samen een keuken die niet alleen efficiënt en betrouwbaar werkt, maar ook perfect aansluit bij jouw horecazaak. Neem contact op of plan een vrijblijvend gesprek.
—Onze visie
De kracht van een
goed functionerende keuken
Elke horecakeuken die we ontwerpen draagt onze kenmerkende signatuur: een uitgebalanceerde mix van efficiëntie, betrouwbaarheid en doordacht design. Inspiratie uit de praktijk, gecombineerd met kennis van de nieuwste technieken en hoogwaardige apparatuur van onze leveranciers, zorgt voor keukenconcepten die verder gaan dan standaardoplossingen.
Het resultaat is een werkomgeving die niet alleen logisch en prettig werkt, maar ook klaar is voor de intensiteit van dagelijks gebruik in de horeca.
—Recente realisaties
Projecten die voor
zich spreken
Bekijk een selectie van horecakeukens die we van A tot Z hebben gerealiseerd. Van eerste ontwerp tot volledige oplevering denken we mee over routing, apparatuur en gebruiksgemak. Elk project is afgestemd op de werkwijze, ruimte en ambities van de ondernemer, met als doel een keuken die in de praktijk optimaal presteert.
—Apparatuur & merken
Op zoek naar
losse horeca-apparatuur
Naast complete keukenprojecten leveren we ook hoogwaardige horeca-apparatuur en werken we met gerenommeerde merken. Ben je op zoek naar een specifiek product of wil je ons assortiment bekijken? Bekijk ons aanbod en ontdek wat we voor je kunnen betekenen.




